À 68 ans, il choisit de tourner une page. Quitter la ville, se rapprocher de ses enfants, trouver un coin de campagne à l’écart du bruit. Avec une idée claire : alléger sa vie et ne garder que l’essentiel.

La rencontre avec le Mô Dulo est décisive. Un habitat en bois, aux lignes organiques et à la lumière apaisante. Ensemble, nous dessinons un Duo sur mesure : grande cuisine ouverte, salon traversant, chambre calme, salle de bain optimisée, un coin lecture face au sud. 

Construit en atelier, installé sans terrassement, le Mô Dulo limite son empreinte sur le terrain. Posé sur pilotis, il s’ancre dans le paysage sans le contraindre.

À La Gacilly, en Bretagne sud, son terrain de 1 000 m² en pente douce accueillera cette nouvelle maison. Un habitat compact, durable, personnel.

Une façon simple et juste d’habiter autrement.

Fiche technique

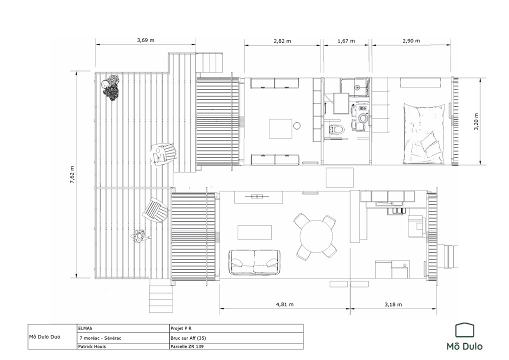
Aménagements : cuisine équipée, salle à manger, salon, chambre, salle d’eau, atelier de peinture.

Extension : garage à vélos et buanderie.

Localisation : secteur de la Gacilly 56

Livraison : 2025

Étude : 4 mois

Travaux : 6 mois

Surface : 50m²

Budget : 165 000 € TTC

Matériaux : module en Douglas et pin, laine de coton, contreplaqué de frênes pour les aménagements.

Fenêtre double vitrage sur châssis aluminium.

Confort : convecteur électrique à fluide caloporteur et chauffe-eau instantané.

 À travers notre newsletter, vous recevrez des actualités sur nos réalisations, nos rencontres et nos évolutions.