Mô Dulo Bûro : Le bureau organique en bois.

Au départ, son activité se déroulait dans un bureau loué, étroit et peu pratique. 

Elle rêvait d’un lieu professionnel différent : un bureau lumineux, spacieux, proche de sa maison.

Avec Mô Dulo, elle découvre une solution élégante : un chalet bois modulaire, posé sans terrassement, au fond du jardin. Ses formes arrondies et son architecture organique s’intègrent naturellement dans le paysage.

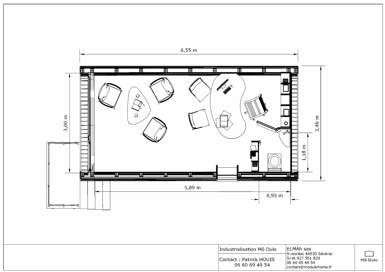
À l’intérieur, la façade vitrée panoramique ouvre sur la campagne. L’espace tout bois, isolé en laine de bois, devient un cocon écologique. Chaque détail est optimisé : une bibliothèque sert de cloison et intègre discrètement les sanitaires.

Plus qu’un bureau, ce module reflète son identité : design fluide, construction écologique, vie en lien avec la nature. Un espace de travail inspirant, à son image.

Aménagements : Espace bureau et réception, bibliothèque/cloison,
toilette

Localisation : secteur de Pontchâteau

Livraison : 2026

Étude : 4 mois

Travaux : 6 mois

Surface : 16m²

 

Budget : 60 000€ TTC Tva 20%

Matériaux : module en Douglas et pin, laine de coton, contreplaqué de frênes pour les aménagements.

Fenêtre double vitrage sur châssis aluminium.

Confort : convecteur électrique à fluide caloporteur et chauffe-eau instantané.

À travers notre newsletter, vous recevrez des actualités sur nos réalisations, nos rencontres et nos évolutions.